The residence in Garopaba is conceived through a careful reading of the site’s topography and its privileged relationship with the coastal landscape. Developed over two levels, with an accessible roof, the house incorporates a landscaped terrace that expands the usable areas and establishes a contemplative vantage point with open views of the sea.
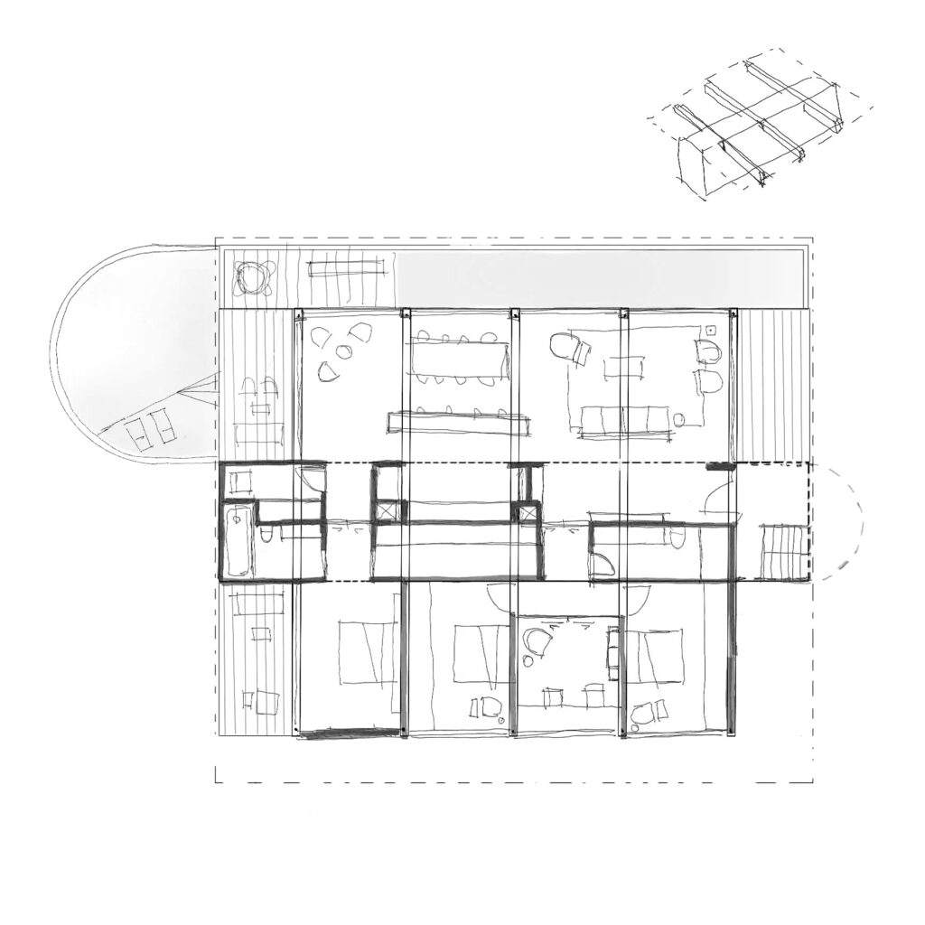
The access level accommodates the support spaces and the garage, functioning as the building’s base. On the upper floor, the main living spaces of the residence are developed, positioned to maximize the relationship with the exterior and the views. The programmatic organization follows a clear concept, structured into three longitudinal bands: a social band, 4.80 meters wide; a service and sanitary band, concentrating the wet areas within 2.40 meters; and a private band, dedicated to the bedrooms, also 4.80 meters wide.
The social area extends into a generous veranda, in direct continuity with the outdoor spaces where the swimming pool is located, reinforcing the integration between interior spaces and the surrounding landscape. The construction system is defined by glulam (glued laminated timber) modules, with the main beams arranged perpendicular to the programmatic bands, providing structural rationality, spatial clarity, and flexibility to the overall design.

















